消防应急照明和疏散指示系统技术标准
GB51309-2018节选
3.3.7 灯具采用自带蓄电池供电时,应急照明配电箱的设计应符合下列规定:
1应急照明配电箱的选择应符合下列规定:
1)应选择进、出线口分开设置在箱体下部的产品;
2)在隧道场所、潮湿场所,应选择防护等级不低于IP65的产品;在电气竖井内,应选择防护等级不低于IP33的产品。
2应急照明配电箱的设置应符合下列规定:
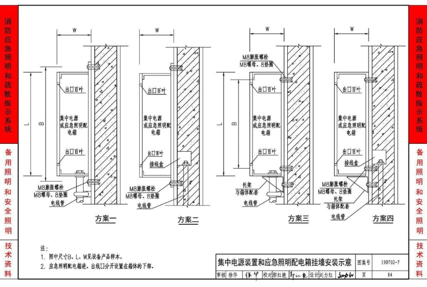
1)宜设置于值班室、设备机房、配电间或电气竖井内。
2)人员密集场所,每个防火分区应设置独立的应急照明配电箱;非人员密集场所,多个相邻防火分区可设置一个共用的应急照明配电箱。
3)防烟楼梯间应设置独立的应急照明配电箱,封闭楼梯间宜设置独立的应急照明配电箱。
【条文说明】
3.3.7 系统灯具采用自带蓄电池供电时,应急照明配电箱的设计应符合下列规定:
1为防止因生活用水跑冒滴漏或者消防水灭火系统动作产生的水介质对应急照明配电箱内部电子元件、线路造成损坏,应选择进出线口均设置在箱体下部的产品;同时,应根据设置场所的环境特点选择适宜防护等级的产品;
4.4.1 应急照明控制器、集中电源、应急照明配电箱的安装应符合下列规定:
1应安装牢固,不得倾斜;
2在轻质墙上采用壁挂方式安装时,应采取加固措施;
3落地安装时,其底边宜高出地(楼)面100mm~200mm;
4设备在电气竖井内安装时,应采用下出口进线方式;
5设备接地应牢固,并应设置明显标识。
【条文说明】
4.4.1本条规定了应急照明控制器、集中电源、应急照明配电箱的安装要求。
2在轻质墙上安装时,由于设备有一定的重量,因此必须采取加固措施;
3落地安装时,应高出地坪100mm~200mm,以便于防潮防水;
4火灾发生时,水灭火系统动作释放的水介质极易流进电气竖井中,为了防止水介质顺着管线流进设备中,对设备造成损坏,在电气竖井中设置的设备应采用下出口进线方式;
5设备应有保护接地,接地应有明显标志以便于日常维护。
6.0.5系统检测、验收结果判定准则应符合下列规定:
1 A类项目不合格数量应为0,B类项目不合格数量应小于或等于2,B类项目不合格数量加上C类项目不合格数量应小于或等于检查项目数量的5%的,系统检测、验收结果应为合格;
2不符合合格判定准则的,系统检测、验收结果应为不合格。
附录E系统调试、工程检测、工程验收记录
注:在附录E中,进出线方式为C类项
《应急照明设计与安装》图集
19D702-7节选


文章节选自:消防安全驿站
消防知识、消防器材、消防技术、消防法规的学习交流中心 --消防百事通--一起来关注 www.fire114.cn