西门子电气火灾监控系统由电气火灾监控设备、电气火灾监控探测器组成。此文档对电气火灾监控探测器的现场安装做一简要说明,以方便现场人员进行安装操作。

一、电气火灾控制器

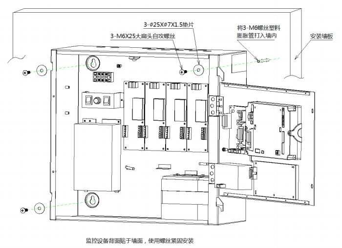
1、安装

要符合当地相关标准或规范。
1.选择一个洁净干燥的、表面平整、牢固的墙壁。
2.确定安装位置,要使得控制器的前门能自由地打开。
3.在墙上标出4个安装孔的位置。(见上图)
4.在安装孔的位置钻4个孔,并装上膨胀螺栓打入墙内。
5.确定并打通控制器的进线孔,打开敲落空。
6.将控制器安装孔和膨胀螺栓位置对齐,把M6×25十字大扁头自攻螺丝配上直径25×φ7×1.5垫片将设备拧紧固安装于墙面。(见下图)

7.将线通过尼龙电线固定头,穿进控制器,
8.将电缆接到端子上。
9.将电池安装到正确的位置。
10.关上前面板,用专用工具锁好。将专用工具放在安全的地方。
二、ECM521-G1组合式电气火灾监控探测器

接线图:

面板安装:

三、EDR521/522剩余电流互感器
接线图:

安装尺寸:

四、EDT521测温式电气火灾监控探测器
接线:

背板安装:

1.将模块放置在平整的表面上。
2.用2个螺钉(M4)将模块固定。安装孔距离:63.5±1.0mm。
五、EDTR521/2-R/S系列组合式电气火灾监控探测器
接线图:

安装尺寸:

六、EDCIO521输入/输出模块
接线图:

背板安装:

1、将模块放置在平整的表面上。
2、用2个螺钉(M4)将模块固定。安装孔距离:63.5±1.0mm。
七、EDCL521-G1隔离模块
接线图:

背板安装:

1、将模块放置在平整的表面上。
2、用2个螺钉(M4)将模块固定。安装孔距离:63.5±1.0mm。
消防知识、消防器材、消防技术、消防法规的学习交流中心 --消防百事通--一起来关注 www.fire114.cn